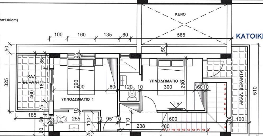
ΚΑΤΟΙΚΙΕΣ 2 ΥΠΝΟΔΩΜΑΤΙΩΝ ΣΤΟ ΚΟΛΟΣΙ ΣΕ ΝΕΟΔΟΜΙΚΟ ΧΩΡΟ, ΕΝΑ ΛΕΠΤΟ ΑΠΟ ΤΟΝ  ΑΥΤΟΚINHTOΔΡΟΜΟ ΣΕ ΠΟΛΥ ΗΣΥΧΗ ΠΕΡΙΟΧΗ, ΤΑ ΣΠΙΤΙΑ ΘΑ ΕΙΝΑΙ ΕΤΟΙΜΑ ΣΕ 6 ΜΗΝΕΣ ΕΧΕΤΕ ΤΗΝ ΠΡΟΣΒΑΣΗ ΝΑ ΕΠΙΛΕΞΕΤΕ: 
ΚΕΡΑΜΙΚΑ 
ΧΡΩΜΑ ΤΟΥ ΣΠΙΤΙΟΥ 
ΣΧΕΔΙΑΣΤΕ ΤΗ ΔΙΚΗ ΣΑΣ ΚΟΥΖΙΝΑ ΚΑΙ ΠΕΡΙΣΣΟΤΕΡΑ.. 
ΓΙΑ ΠΕΡΙΣΣΟΤΕΡΕΣ ΠΛΗΡΟΦΟΡΙΕΣ ΚΑΛΕΣΤΕ ΣΤΟ 99090300 ΚΑΙ ΣΤΟ 99074075
Are you interested for a new home?
Get a quote